尚湾林语官方认证售楼处电话尚湾林语营销中心官网│2026售楼处-楼盘价格户型地址电话环境配套交房易游娱乐- 易游体育官网- 体育APP时间官方
2026-04-28易游体育,易游娱乐,易游体育官网,易游,易游体育官网,易游体育网址,易游体育网站,易游体育入口,易游体育注册,易游体育下载,易游体育app,易游app,易游官方网站【温馨提示】本项目唯一官方联系方式,看房请提前预约!现场销售接待!谨防中介虚假信息!
而现在,一个历史性的置业机遇,就摆在闵行.随着地王频出,梅陇售价破“8”,闵行中部筑底价800万级.
正如一个时代会有标杆、一个城市会有地标,每一个社区,亦有臻藏之作,以众星拱月之势超越生活想象.
其次,操刀者上海地产集团是上海城市更新的先行者,与上海同频共振发展21年,开发经验丰富!
大家熟知的闵行经济开发区、虹桥经济开发区、黄浦江两岸45公里滨江生活岸线、三林楔形绿地等整片开发、城市更新的区域,都出自上海地产集团之手.
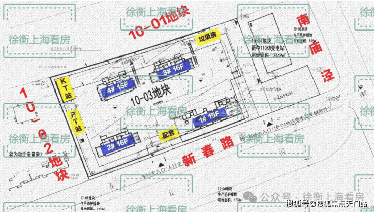
项目东至20-02地块,南至银春路,西至新源路,北至10-01地块,整于银春路的北侧,距离5号线公里左右!
根据大小不同的地块组成,由32幢住宅、18幢社区配套公建及4个地下汽车库组成.合计住宅套数下限约1767套,需配建5%以上的保障性住房,全装修比例50%,要求中小套户型不得低于总住宅建筑面积的80%!
19-01地块:拟建7栋16F高层住宅、3栋9F高层住宅、1栋14F高层住宅、1栋10F高住宅以及若干配套用房.
19-05地块:拟建7栋16F高层住宅、3栋9F高层住宅、1栋14F高层住宅、1栋10F高层住宅以及若干配套用房.
20-01地块:拟建6栋16F高层住宅、2栋14F高层住宅、3栋10F高层住宅、1栋9F高层住宅以及若干配套用房.
【尚湾林语】整体为9-14层的滨水小高层,大大提升了得房率.据了解,项目得房率达到了约78.6%-82.2%左右,甚至超过了市面上部分洋房产品.
重要的是,项目摒弃了利润更高的高低配,打造了全小高层社区,就是为了让户户皆有景、视野plus:
基础的“框架”已初步成型,继而填充的“内容”将推动区域腾空而起,更多好消息接踵而至.
在都荟之城——尚品天地,汇聚商办、文体教育等丰富业态,宛如一座繁华的都市生活舞台,满足人们对都市生活的无尽遐想.
3、约15万方未来理想水岸,沿天然水系河道规划滨河绿廊、活力水岸、休闲水岸、风景河岸等.未来,可沿河岸晨跑、慢骑、散步……
4、约3万方活力文体中心,你可以随时和家人、老友、工作伙伴开启一场酣畅淋漓的运动之旅.
进入南入户大堂,能感受到具有仪式感的现代轻奢设计,灰色大面铝板搭配金色格栅,每一次入户都能体验到无比尊崇的感觉.内部墙面做了大面积岩板,以及具有设计感的吊顶,更贴心地配备了空调,营造舒适的环境.
进入小区内部,绿化做得也无敌得好,安静、舒适、养眼!一看就是高端品质盘!
据悉,布局有风森会客厅、阳光草坪、林荫步道、能量花园、萌宠乐园,环形慢跑道等多重节点.
通车的金阳路,崭新的城市界面,道路拓宽后,干净、舒适、整洁!未来出行,超便捷!
主卧+次卧的尺度感都非常不错.即使是书房也有不错的空间,未来打造一个儿童房也绰绰有余.
尤其户型餐厅位置,可以放下六人桌,而一般户型只能贴墙放四人桌.尚湾林语百平米户型大家庭其乐融融.
入户进门就是独立的玄关,充裕的收纳空间,可有条不紊地归置鞋履及长外套或各类出行必备物品.
通透明亮的客餐厅空间,足够放下六人餐桌,不论是休闲、用餐还是聚会,都能为生活带来更多畅想空间,打造家庭融情生活的主场.全屋配备了日立中央空调与威能地暖系统,在每个客厅、卧室区域都有独立的开关面板,都是业主优雅生活的基础条件.
当然,这个超大方厅也给你留下一个X空间,可随家庭结构和需求随心个性定制,书房、学习区、游戏区,女王化妆间等皆可.南向双套房,给予家庭成员满满的私密性.其中主卧配置豪华,带衣帽间+浴缸+淋浴+马桶+台盆.另外还有一个次卫,离北向卧室也很近,其实家庭人口不是特别多的情况下可以做成第三个套间.
以及“爱马仕”级别的德国西门子厨具——洗碗机、燃气灶、抽油烟机!全是国内外一线月,七宝中学教育集团与闵行区颛桥镇府合作协议签约仪式圆满完成,引进七宝中学教育集团签订协议.目前已明确入驻18-03、18-05地块,将建设一所幼儿园及初中,规划建筑面积约3.44万方,预计2025年正式开始建设.
选择17平方公里,4000+家硬科技成果单位,660家高新技术企业,137家估值亿元以上企业,43家估值超10亿元企业,10家上市企业,70+名院士……剑指世界级科创湾区,大零号湾交出最新成绩单.
作为上海目前唯一以“科技创新策源”定位的功能区,与张江、临港一起,成为全市首批未来产业先导区.
在尚湾林语,不管你是穿拖鞋下楼,还是茶余饭后骑自行车出门,项目周边的配套可谓全维度便捷与高规格.
【温馨提示】本项目唯一官方联系方式,看房请提前预约!现场销售接待!谨防中介虚假信息!
1、房产是指房屋经济形态,在法律上有明确的权属关系,在不同的所有者和使用者之间可以进行出租出售或作其它用途的房屋.
2、地产是指土地财产,在法律上有明确的权属关系,地产包含地面及其上下空间,地产与土地的根本区别也就是有无权属关系.
3、房地产是房产和地产的总称.是指土地及附着在土地上的人工构筑物和建筑物及其附带的各种权利(所有权、管理权、转让权等)
.4、房地产业是以土地和建筑物为经营为对象,从事房地产开发、建设、经营、管理以及维修、装饰和服务的集多种经济活动为一体的综合性产业.
7、土地所有制现行全部土地实行的是社会主义土地公有制,分为全民所有制(即国家所有)和劳动群众集体制(即集体所有)两种形式.其中,城市市区的土地全部属于国家所有;农村和城市郊区的土地法律规定属于国家所有的以外,属于集体所有;宅基地和自留地、自留山,属于集体所有;矿物、水流、森林、山岭、草原、荒地、滩涂等自然资源,属于国家所有,由法律规定属于集体所有,森林、山岭、草原、荒地、滩涂除外.但地上建筑物既可以为国家所有,也可以为集体、单位和个人所有.因此,同一宗房地产,其土地与地上建筑物的所有权往往是不一致的.
11、房子的居住时间是多少,土地使用年限届满后,该怎么办?房屋一经购买并取得产权后,即作为业主个人所有的财产,并无居住年限的限制,担对该房屋所占用范围内的土地来说,因为土地除属于集体所有的外,均属于国家所有.业主所取得的为该土地的一定年限的使用权.住宅用地的土地使用时间为50—70年,自开发商取得该土地使用证书之日起计算.在该土地使用年限届满后,土地将由国家收回.业主可以在继续交纳土地出让金或使用费的前提下,继续使用该土地.
17、什么是地籍?什么是产籍?我们通常所指的地籍、产籍、房地产籍是同一概念.它是指土地的自然状况、社会经济状况和法律状况的调查与登记,包括了土地产权的登记和土地分类面积等内容.具体来讲,是对在房地产调查登记过程产生的各种图表、证件等登记资料,经过整理、加工、分类而形成的图、档、卡、册等资料的总称.
.36、住房补贴住房补贴是国家为职工解决住房问题而给予的补贴资助,即将单位原有用于建房、购房的资金转化为住房补贴,分次(如按月)或一次性地发给职工,再由职工到住房市场上通过购买或租赁等方式解决自己的住房问题.住房补贴发放的原则是:坚持效率优先,兼顾公平的原则,由各地政府根据当地经济适用住房平均价格、平均工资,以及职工应享有的住房面积等因素具体确定.
房屋的折旧房屋折旧是逐步回收房屋投资的形式,即房屋的折旧费.折旧费是指房屋建造价值的平均损耗.房屋在长期的使用中,虽然保留原有的实物形态,但由于自然损耗和人为的损耗,客观存在的价值也会逐渐减少.这部分因损耗而减少的价值,以货币形态来表现,就是折旧费.确定折旧费的依据是建筑造价残值、清理费用和折旧年限.
38、房屋的所有权是指对房屋全面支配的权利.房屋的所有权分为占有权、使用权、收益权和处分权四项权能,这也是房屋所有权的四项基本内容.
39、房屋的占有权通常由所有权人来行使,但有时也由别人来行使,这就是使用权与所有权分离的情况.
40、房屋的使用权是对房屋的实际利用权利.通过一定法律契约,非房屋所有权人也可获得房屋的使用权.
41、房屋的收益权是指房主收取房屋财产所产生的各种收益.42、房屋的处分权是所有权中一项最基本的权能.房屋的处分权由房主行使.有时房屋处分权也受到一定的限制.
43、房地产交易形式房地产市场的房地产交易形式主要有两种:地产交易形式与房产交易形式.44、住宅的“全部产权”是指按市场价和成本价购买的房屋,购房者拥有全部产权.经济适用房亦属于全部产权
.45、住宅的“部分产权”是指职工按标准价购买的公有住宅.在国家规定的住房面积之内,职工按标准价购房后只拥有部分产权,可以继承和出售,但出售时原产权单位有优先购买权,售房的收入在扣除有关税费后,按个人和单位所占的产权比例分配.
61、道路、广场用地指小区内主次干道、支道、人行道、绿化带中间宽度大于1.5米的步行道及停车、回车广场和有铺砌地面的场地面积之和.62、庭院、绿化面积指小区内集中绿化带、小公园、住宅间集中种植花木、草地、假山、花架、水榭、水池,以及公共活动场所等为小区所有居住人员共同使用权的绿化面积的总和.
84、使用面积系数K1(%)使用面积系数=总使用面积(平方米)/总建筑面积(平方米)×100%.85、居住面积系数K2(%)居住面积系数=总居住面积(平方米)/总建筑面积(平方米)×100%.86、结构面积系数K3(%)结构面积系数=总结构面积(平方米)/总建筑面积(平方米)×100%.
90、得房率指套(单元)内建筑面积与套建筑面积的比率.91、公共能耗费是小区共用部位、共用设备和公共设施及在公共性服务中所发生的水、电、煤等能源消耗,被称为公共能耗,由此所产生的费用为公共能耗费.92、商品房预售俗称“卖楼花”,即在房地产尚未建成以前,房地产的经销商在取得受买人一定数量的定金后,将期房出售给受买人.
93、商品房现售是指房地产开发企业将竣工验收合格的商品房出售给买受人,并由买受人支付房价款的行为.94、外销房是指房地产开发企业按政府外资工作主管部门的规定,通过实行土地批租形式,报政府计划主管部门列入正式项目计划,建成后用于向境内境外出售的住宅、商业用房及其它建筑物.95、内销房是指房地产开发企业通过实行土地使用权出让形式,经过政府主管部门审批,建成后用于在国内范围(目前不包括香港特别行政区、澳门和台湾)出售的住宅、商业用房及其它建筑物
129、未成年人是否可以作为权利人办理《房地产证》?未成年人可以作为权利人办理《房地产证》,但办理时须提交其监护关系证明和监护人身份证明,并在《房地产证》上备注其法定监护人姓名.由于未成年人为没有民事行为能力或限制民事行为能力的人,因此在处分该房地产时必须符合有关法律规定.
房地产权初始登记指对未经登记机关确认其房地产权利,领取房地产权利证书的土地使用权及建筑物、附着物的所有权进行的登记.
133、房地产登记即房地产产权登记,它是国家为健全法制,加强城镇房地产管理,依法确认房地产产权的法定手续.城市房地产权属都必须向房地产所在地的房地产管理机关申请登记.经审查确认产权后,由房地产管理机关发给《房地产产权证》.产权登记是房地产管理的行政手段,只有通过产权登记,才能对各类房地产权属实施有效的管理.
134、房地产登记的种类有哪些?房地产登记的种类分为初始登记、转移登记、抵押登记、变更登记、其它登记.
135、什么情形属于房地产变更登记?下列情形属于房地产变更登记:(1)地产使用用途改变;(2)权利人姓名或名称发生变化的;(3)房地产座落名称或房地产名称发生变化的;(4)建筑物、附着物倒塌、拆除.
136、房地产登记是以什么单位进行登记的?房地产登记是以一宗土地为单位进行登记的.所谓一宗土地,是指以权属界线组成的封闭地块.一宗土地存在两个或两个以上权利人的,各权利人分别对该宗土地上的建筑物、附着物的所有权和拥有的土地使用权份额申请登记.137、申请房地产登记,可否委托他人代理?申请房地产登记,申请人可以委托他人代理.由代理人办理申请登记的,应向登记机关提交申请人的委托书.境外申请人的委托书应按规定经过公证或认证.
138、确权确权就是房地产登记机关对房地产权利的确认.即是依照法律、政策的规定,经过房地产申报、权属调查、地籍勘丈、审核批准、登记注册、发放权利证书等登记规定程序,确认某一房地产权利归属的过程.
房地产转让是指合法拥有土地使用权及土地上建筑物、附着物所有权的自然人、法人和其他组织,通过买卖、交换、赠与将房地产转移给他人的法律行为
141、房地产转让时,其他公用设施是否一起转让?房地产转让时,转让人对同宗土地上的道路绿地、休闲憩地、空间余地、电梯、楼梯、连廊、天台或者其他公用设施所拥有的权益同时转移.房地产首次转让合同对停车场、广告权益没有特别约定的,停车场、广告权益随房地产同时转移;有特别约定的,经房地产登记机关初始登记,由登记的权利人拥有.
房地产抵押指债务人或第三人(抵押人)以其合法拥有的房地产作为担保物向债权人(或押权人)提供债务履行担保的行为.房地产按揭于房地产抵押的一种形式.
143、申请抵押登记应提交什么资料?(1)《房地产抵押登记申请书》;(2)委托书;(3)房地产证;(4)夫妻双方身份证、户口簿、结婚证或未婚姻证明;(5)商品房买卖合同和个人住房借款合同.
144、已抵押的房地产能否转让?根据《中华人民共和国担保法》的规定,已抵押的房地产可以转让,但应由抵押人、转让人和受让人三方签订有关的公证书,即签订将原抵押转移给新的受让方的协议;抵押人未通知抵押权人或者未告知受让人的,转让行为无效.
145、以房地产抵押向银行贷款,是否一定要办理登记?以房地产作为抵押物向银行贷款,一定要到房地产登记部门办理抵押登记手续.根据《中华人民共和国担保法》的规定,抵押合同自登记之日起生效,所以,只有办理了抵押登记,抵押合同才有法律效力.
146、借款人如何偿还银行贷款?贷款期限在1年内(含1年)的,实行到期本息一次性清偿的还款方式.贷款期限在1年以上双方一般约定按等额本息还款法归还贷款,即借款人在借款期内每月以相等的月均还款额偿还银行贷款本金和利息.
147、贷款期如遇利息调整,如何处理?根据人民银行的规定,贷款期间如遇国家调整利率,贷款期限在1年以内(含1年)的,实行合同利率,不分段计算;对一年期以上贷款,于下一年1月1日开始,按相应期限档次利率执行新利率.
转按揭转按揭就是个人住房转按贷款,个人住房转按贷款是指已在银行办理个人住房贷款的借款人,向原贷款银行要求延长贷款期限或将抵押给银行的个人住房出售或转让给第三人而申请办理个人住房贷款变更借款期限、变更借款人或变更抵押物的贷款.
153、个人住房按揭需提交哪些资料?购房身份证、户口簿、结婚证原件及复印件(若客户为未婚则提供户口所在地街办计生委出具的未婚证明原件);购房人及其配偶所在工作单位出具工资收入证明(若干个体户则提供营业执照及税票);购房人已首付购房款收据原件及复印件;已与开发公司签订的购房合同;在开户行开户的活期存折;贷款申请书、个人住房借款合同、借款借据、委托银行扣收购房还款协议书、住房抵押承诺书.
155、等额本金还款法等额本金还款法是一种计算非常简便,实用性很强的一处还款方式.基本算法原理是在还款期内按期等额归还本金,并同时还清当期未归还的本金所产生的利息.方式可以是按月还款和按季还款.
156、一次性还本付息法现各银行规定,贷款期限在一年以内(含一年),那么还款方式为到期一次性还本付息,即初期的贷款本金加上整个内的利息综合.
157、权利担保银行可接受的质押物是特定的有价证券和存单,有价证券包括国库券、金融债券和银行认可的企业债券,存单只接收人民币定期储蓄存单.借款人申请质押担保贷款,质押权利凭证所载金额必须超过贷款额度,即质押权利凭证所载金额要至少大于贷款额度的10%.各种债券要经过银行鉴定,证明真实有效,方可用于质押,人民币定期储蓄存单要有开户银行的鉴定证明及免挂失证明,借款人在与银行签订贷款质押合同的同时,要将有价证券、存单等质押物交由贷款银行保管,并由贷款银行承担保管责任,如果借款人要求进行公证,双方可以到公证机关办理公证手续,公证费用由借款人承担.选择担保方式,要求居民家庭有足额的金融资产,依靠这些金融资产完全可以满足购房消费的需要,只是购房时难于变现或因变现会带来一定损失而不想变现.因此,采取质押方式,只有少数人才能做到.
158、个人住房担保贷款?中国人民银行于1997年4月颁布了《个人住房担保贷款管理办法》(该办法在1998年5月进行了修改).按照该办法的定义,个人住房担保贷款是指借款人或第三人以所购住房和其他具有所有权的财产作为抵押物,或由第三人为其贷款提供保证,并承担连带责任的贷款;借款人到期不能偿还还贷款本息的,贷款银行有权依法处理其抵押物或要求保证的承担连带偿还本息责任.
公积金贷款公积金贷款也就是个人住房担保委托贷款,是由城市住房资金管理中心及所属分中心运用房改资金委托银行向购买(含建造、大修)自住住房的公积金交存人和离退休职工发放的贷款.
办理公积金贷款应提供哪些资料?身份证、户口簿、结婚证、收入证明、审核后购房合同一份,首付款票据
165、住房抵押贷款所谓抵押贷款就是抵押人(购房者)向抵押权人(银行)以所购房产作贷款抵押,并同时签定抵押合同,以不转移所有权方式作为按期归还贷款的担保,并持公证的商品房预售合同向有关房产登记机关进行抵押登记,当抵押人按合同约定还清全部本息后,便可收回贷款的担保,并持经公证的商品房预售合同向有关房产登记机关进行抵押登记,当抵押人按合同约定还清全部本息后,便可收回“房屋所有权证”与“土地使用证”.166、商品房验收合格指的是单体(即单幢楼盘)验收合格.167、商品房综合验收合格指的是包含所有配套设施在内的全部建筑物的验收合格.168、在什么情况下,房地产开发项目可以交付使用?房地产开发项目竣工,经验收合格后,方可交付使用;未经验收或者验收不合格的,不得交付使用.169、在房屋交付时,发展商应提交哪些文件?房屋交付时,房地产开发企业应当根据《商品住宅实行质量保证书和住宅使用说明书制度的规定》,向买受人提供《住宅质量保证书》、《住宅使用说明书》.
170、物业的竣工验收是指从物业形态上说,建筑商完成了一项最终产品,开发商也完成了物业开发任务,这时他们之间所发生的一个法定手续.
171、何为“预售面积”和“竣工面积”?预售面积是指全部按建筑设计图上尺寸计算的房地产建筑面积,它只供房地产预售时使用;竣工面积是指房地产竣工后实测的面积或用与竣工房地产尺寸相符的建筑设计图计算的建筑面积,它为房地产交易、租赁、抵押、竣工验收、产权登记等提供依据.
172、物业管理泛指一切有关房地产开发、经营、商品房销售、租赁及售后服务.
业主委员会业主委员会是在物业管理区域内代表全体业主实施自治管理的组织.业主委员会由业主大会从全体业主中选举产生,是经政府部门批准成立的代表物业全体业主合法权益的社会团体,其合法权益受国家法律保护.
176、健康住宅是指能使居住者在身体上、精神上、社会以上完全处于良好状态的住宅.177、违法建筑是指未经规划土地主管部门批准,未领取建设工程规划许可证或临时建设工程规划许可证,擅自建筑的建筑物和构筑物.
空鼓局部面局材料与基层没有胶合剂或胶合剂没有起作用,用小槌轻击有空壳声.如瓷砖与墙面间局部水泥砂浆不饱和,形成空鼓.
179、如何办理装修许可证?首先由装修申请者填写申报材料进行申报,然后由房产管理局受理申报,经房管局光派人现场查勘后进行审批,最后是缴费和领取许可证;备齐如下材料:按要求填写房屋装修申请表一式二份,交验房屋所有权证,租赁的要提供房屋报有人同意装修的书面意见及租赁合同;装修设计方案和施工图;承诺因装修而造成邻里正常使用要负责维修或赔偿的承诺书;办理白蚁防治手续.
180、LOGO即楼盘标识,楼盘独有的标志,多见于广告幅、旗、板牌以及外墙、售楼处.一般表现为图案、美术字、字母等.
181、商品房预售须符合哪些条件?(1)交付全部土地使用权出让金,取得土地使用权证书;(2)有建设工程规划许可证;(3)按提供预售的商品房计算,投入开发建设资金达到工程建设总投资的25%以上,并已经确定施工进度和竣工交付日期;(4)向县级以上人民政府房产管理部门办理预售登记,取得商品房预售许可证明.
182、哪些情况下,预售房购买者可以要求取消预售房合同?(1)房屋开发公司不能按照原定日期交付预购房屋;(2)建成后的房屋实际面积与预售房合同确定的面积不相符;(3)建成后房屋建筑的材料与预售合同所列建材不相符.
183、预售房转让是购房者将购买的预售房转让给他方的行为.184、业主是物业的所有人或物业的使用人.
196、如何填写楼盘市调详表?(1)产品:A、地段B、公司组成C、基本参数D、建筑类别E、面积与户型F、建材装潢·公用设施G、施工进度·交房日期(2)价格:A、单价B、总价C、付款方式(3)广告:A、接待中心B、广告媒体C、数量强制D、主要诉求E、来电来人(4)销售:A、销售率B、客源分析(5)总结:A、成功点B、失败点C、建议
平台声明:该文观点仅代表作者本人,搜狐号系信息发布平台,搜狐仅提供信息存储空间服务。


